Fra første streg til færdigt byggeri, vi hjælper dig trygt i gang med alt fra skitser til visualiseringer til myndighedstegninger og byggetilladelser. Vores erfarne arkitekter laver arkitekttegninger til hus, tilbygning, ombygning og renovering, så dit projekt kan godkendes hurtigt og korrekt.
Udfyld formularen og modtag et gratis og uforpligtende tilbud på dine arkitekttegninger allerede i dag.
Hos Gratisbyggetilbud arbejder vi tæt sammen med vores egne arkitekter for at sikre, at dine idéer bliver til virkelighed, på en måde der både er æstetisk, praktisk og godkendt af myndighederne.
Vi har samlet alle kompetencer under ét tag, så du slipper for at koordinere med flere forskellige parter. Uanset om du skal booke nyt eller bygge til, står vi klar med arkitekttegninger og statiske beregninger.
Ønsker du den komplette pakke med myndighedstegninger, statiske beregninger og byggetilladelse, så står vi klar med den nødvendige erfaring og indsigt. Vi sørger for alt kommunikation med kommunen, så dine tegninger går lige igennem byggetilladelsesprocessen og bliver til virkelighed.
Hos Gratisbyggetilbud forener vi arkitektur og ingeniørfaglighed i én samlet løsning. Her får du ikke en tilfældig tegning fra en ekstern partner, du får et dedikeret team med både arkitekt- og ingeniørkompetencer samlet under ét tag.
Vores tekniske personale er uddannede civilingeniører med speciale indenfor arkitektur og konstruktion. De arbejder side om side med resten af teamet for at sikre, at dit projekt både ser godt ud, fungerer i praksis og overholder alle regler.
Vi tænker hele projektet igennem fra første skitse til godkendelse og færdigt byggeri. Det betyder, at vi tidligt i processen tager højde for både æstetik, bæreevne, myndighedskrav og økonomi, så du undgår dyre overraskelser undervejs.
Vi er dedikeret til at give dig den bedste og mest komplette oplevelse, med proaktiv og serviceorienteret kommunikation i fokus. Vi ved samtidig, hvordan man taler teknisk med kommunen, og praktisk med håndværkeren. Derfor får du tegninger og dokumentation, som er nemme at forstå og godkende for alle parter.
Det er let at tegne noget flot, men det er ikke altid let at bygge det. Hos os bliver idéen altid vurderet med både arkitektens og ingeniørens øjne, så vi sikrer, at løsningen kan realiseres uden at gå på kompromis med hverken funktion eller form.
Hos Gratisbyggetilbud kan vi stå hele processen bag din byggeansøgning.
Du kan trygt lade os stå for arkitekttegninger, statiske beregninger og kommunikationen med kommunen. Vi behandler din byggeansøgning gnidningsfrit fra første skitse til færdigt projekt.
Søger du en løsning der optimerer energiforbrug, så tilbyder vi løsninger, der gør dit byggeri mere bæredygtigt.
Vi sørger eksempelvis for at vores design maksimerer naturligt lys, udnytter passiv ventilation og termisk masse for at sikre et stabilt indeklima.
Vi starter med dine drømme og tanker og oversætter dem til konkrete ideer. En god løsning starter med en god samtale.
Du modtager præcise og teknisk gennemarbejdede tegninger til dit projekt. Hvad enten du skal bygge nyt, bygge til eller ændre på din eksisterende bolig. Arkitekttegningerne laves så de kan bruges til både myndighedsgodkendelse og som grundlag for håndværkere.
Vi har styr på reglerne og lokalplanerne, og vi sørger for, at dit projekt bliver beskrevet og dokumenteret korrekt, så kommunen kan behandle din byggesag.
Du får realistiske 3D-tegninger af dit byggeri, både indvendigt og udvendigt. Det giver dig mulighed for at opleve det færdige projekt, før arbejdet går igang. Det giver et godt overblik over alt fra proportioner og lysindfald til materialevalg.
Vi gør meget ud af, at du føler dig tryg og forstået, også hvis du ikke er vant til at tale byggeri. Du får direkte kontakt til de mennesker, der laver dine tegninger, og du er altid velkommen til at stille spørgsmål.
Når vi laver arkitekttegninger til dit projekt, får du et samlet overblik over hele byggeriet. Tegningerne viser alt du skal bruge, fra bygningens placering, til snit, facader og tagkonstruktion. Vi sørger for, at materialet lever op til de krav, der stilles til et myndighedsprojekt, og samtidig er let at forstå for dig som bygherre.
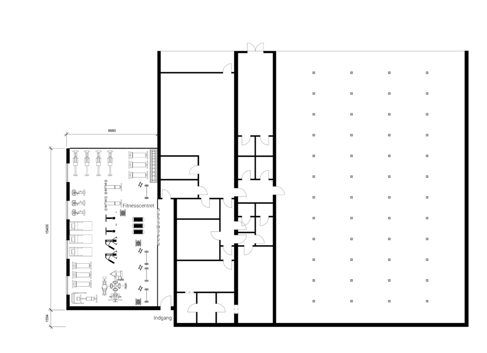
Viser bygningens indretning set oppefra, som rumfordeling, vægge, døre, vinduer, trapper, køkken etc.
Viser, hvordan bygningen placeres på grunden i forhold til skel, adgangsveje, naboer og terræn.
Viser bygningens ydre set fra alle sider. Her kan du se vinduer, døre, tagform og materialevalg.
Viser tagets udformning og hældning inkl. tagvinduer, kviste, skorsten og evt. solceller.
Hos Gratisbyggetilbud tilbyder vi 3D-visualisering af dine arkitekttegninger. Du behøver ikke at gætte dig til hvordan projektet kommer til at se ud i virkeligheden. I eksemplet herunder fra vores projekt for Lyngby Roklub, kan du se forskellen mellem en klassisk 2D-tegning og en færdig 3D-rendering, begge udarbejdet af vores arkitektteam.
Med 3D får du et mere realistisk indtryk af proportioner, materialer, lysindfald og sammenhængen mellem bygning og omgivelser. Det gør det lettere at tage beslutninger tidligt i processen, og sikrer, at både du og håndværkerne arbejder ud fra samme forståelse.


For mig handler god arkitektur ikke bare om æstestik, det handler om at forstå mennesker og deres behov. Jeg elsker at skabe løsninger, der både fungerer i praksis og føles rigtige for dem.
Uanset om du drømmer om at bygge nyt, renovere dit eksisterende hjem eller har brug for professionel sparring, så står vores arkitekter klar til at hjælpe dig godt videre.
Hos os får du ikke bare flotte tegninger, men en komplet løsning, hvor vi guider dig hele vejen fra idé til godkendt projekt. Vi forstår, hvor vigtigt dit byggeprojekt er, og vi gør det til vores mission at gøre processen tryg, overskuelig og tilpasset dine behov.
Vi bruger cookies til at sikre, at vores hjemmeside fungerer korrekt, til statistik og til at forbedre din oplevelse. Du kan altid ændre dine cookieindstillinger.